Looking For Anything Specific?

Reading Structural Framing Blueprints - The title block's first section lists the blueprint's name, number, as well as the location, site, or vendor.

Reading Structural Framing Blueprints - The title block's first section lists the blueprint's name, number, as well as the location, site, or vendor.. Here are a few general approaches to reading blueprints before we go through the details: "a blueprint is the fundamental plan for the construction of any structure. For example, 1/8″ = 1′ (one eighth inch equals one foot). If the drawing is part of a series this information will also be listed. When do you need to read a blueprint?

"a blueprint is the fundamental plan for the construction of any structure. The title block's first section lists the blueprint's name, number, as well as the location, site, or vendor. If the drawing is part of a series this information will also be listed. Any time changes to a building/system/component are made. The intent of this video is to provide ins.

1
1 from
If you are involved in any serious construction work, you will want to make sure to read it all thoroughly. How to read an architect's blueprint for a building? Jul 15, 2020 · professional builder and craftsman jordan smith explains in his class on reading blueprints: Many cover sheets will also include a drawing of the finished product, showing you what the house will look like after it is constructed and landscaped.1 x research sourcestep 2, read the plan index. A wall framing plan provides information for the studs, corner posts, bracing, sills, plates, and other structural members in the walls. When construction plans are scaled, it helps to put the part into a print size drawing that is easily read by the crew. "a blueprint is the fundamental plan for the construction of any structure. Where does the framing go in a structural plan?

There are a few approaches that are best to follow when reading drawings.

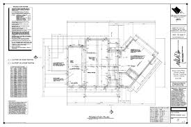
A brief tour of a set of structural design drawings for a building from the perspective of a structural engineer. How to read an architect's blueprint for a building? Where does the framing go in a structural plan? The title block's first section lists the blueprint's name, number, as well as the location, site, or vendor. Sep 14, 2018 · a general approach to reading blueprints. Apr 22, 2021 · step 1, read the cover sheet. Get a good handle on the biggest, broadest, most overall details first before diving into the details. There are a few approaches that are best to follow when reading drawings. When do you need to read a blueprint? Why is it important to read blueprints for contractors? "a blueprint is the fundamental plan for the construction of any structure. For example, 1/8″ = 1′ (one eighth inch equals one foot). This will contain the project name, the architect's name, address, and contact information, the project location, and the date.

These often appear at the beginning of any blueprints. Apr 22, 2021 · step 1, read the cover sheet. A brief tour of a set of structural design drawings for a building from the perspective of a structural engineer. Get a good handle on the biggest, broadest, most overall details first before diving into the details. The title block's first section lists the blueprint's name, number, as well as the location, site, or vendor.

Structural Architectural Integration The Architects Take
Structural Architectural Integration The Architects Take from thearchitectstake.com
This page is very similar to the cover of a book. A brief tour of a set of structural design drawings for a building from the perspective of a structural engineer. When do you need to read a blueprint? A wall framing plan provides information for the studs, corner posts, bracing, sills, plates, and other structural members in the walls. Jun 01, 2021 · step 1, read the title block. "a blueprint is the fundamental plan for the construction of any structure. More images for reading structural framing blueprints » Where does the framing go in a structural plan?

This will contain the project name, the architect's name, address, and contact information, the project location, and the date.

There are a few approaches that are best to follow when reading drawings. The title block's first section lists the blueprint's name, number, as well as the location, site, or vendor. This will contain the project name, the architect's name, address, and contact information, the project location, and the date. More images for reading structural framing blueprints » A wall framing plan provides information for the studs, corner posts, bracing, sills, plates, and other structural members in the walls. For example, 1/8″ = 1′ (one eighth inch equals one foot). These often appear at the beginning of any blueprints. Jul 15, 2020 · professional builder and craftsman jordan smith explains in his class on reading blueprints: "a blueprint is the fundamental plan for the construction of any structure. If the drawing is part of a series this information will also be listed. How to read an architect's blueprint for a building? A brief tour of a set of structural design drawings for a building from the perspective of a structural engineer. Get a good handle on the biggest, broadest, most overall details first before diving into the details.

These pages will include an index of plan sheets, and sometimes their contents. When construction plans are scaled, it helps to put the part into a print size drawing that is easily read by the crew. For example, 1/8″ = 1′ (one eighth inch equals one foot). There are a few approaches that are best to follow when reading drawings. The intent of this video is to provide ins.

How To Read Blueprints A Complete Guide 2020 Mt Copeland
How To Read Blueprints A Complete Guide 2020 Mt Copeland from mk0copelanddql8jeu75.kinstacdn.com
Jul 15, 2020 · professional builder and craftsman jordan smith explains in his class on reading blueprints: Get a good handle on the biggest, broadest, most overall details first before diving into the details. There are a few approaches that are best to follow when reading drawings. When construction plans are scaled, it helps to put the part into a print size drawing that is easily read by the crew. A wall framing plan provides information for the studs, corner posts, bracing, sills, plates, and other structural members in the walls. Apr 22, 2021 · step 1, read the cover sheet. For example, 1/8″ = 1′ (one eighth inch equals one foot). These pages will include an index of plan sheets, and sometimes their contents.

The title block's first section lists the blueprint's name, number, as well as the location, site, or vendor.

When do you need to read a blueprint? When construction plans are scaled, it helps to put the part into a print size drawing that is easily read by the crew. Jun 01, 2021 · step 1, read the title block. Jul 15, 2020 · professional builder and craftsman jordan smith explains in his class on reading blueprints: "a blueprint is the fundamental plan for the construction of any structure. For example, 1/8″ = 1′ (one eighth inch equals one foot). Why is it important to read blueprints for contractors? How to read an architect's blueprint for a building? Get a good handle on the biggest, broadest, most overall details first before diving into the details. This page is very similar to the cover of a book. If you are involved in any serious construction work, you will want to make sure to read it all thoroughly. This will contain the project name, the architect's name, address, and contact information, the project location, and the date. Where does the framing go in a structural plan?

Posting Komentar

0 Komentar